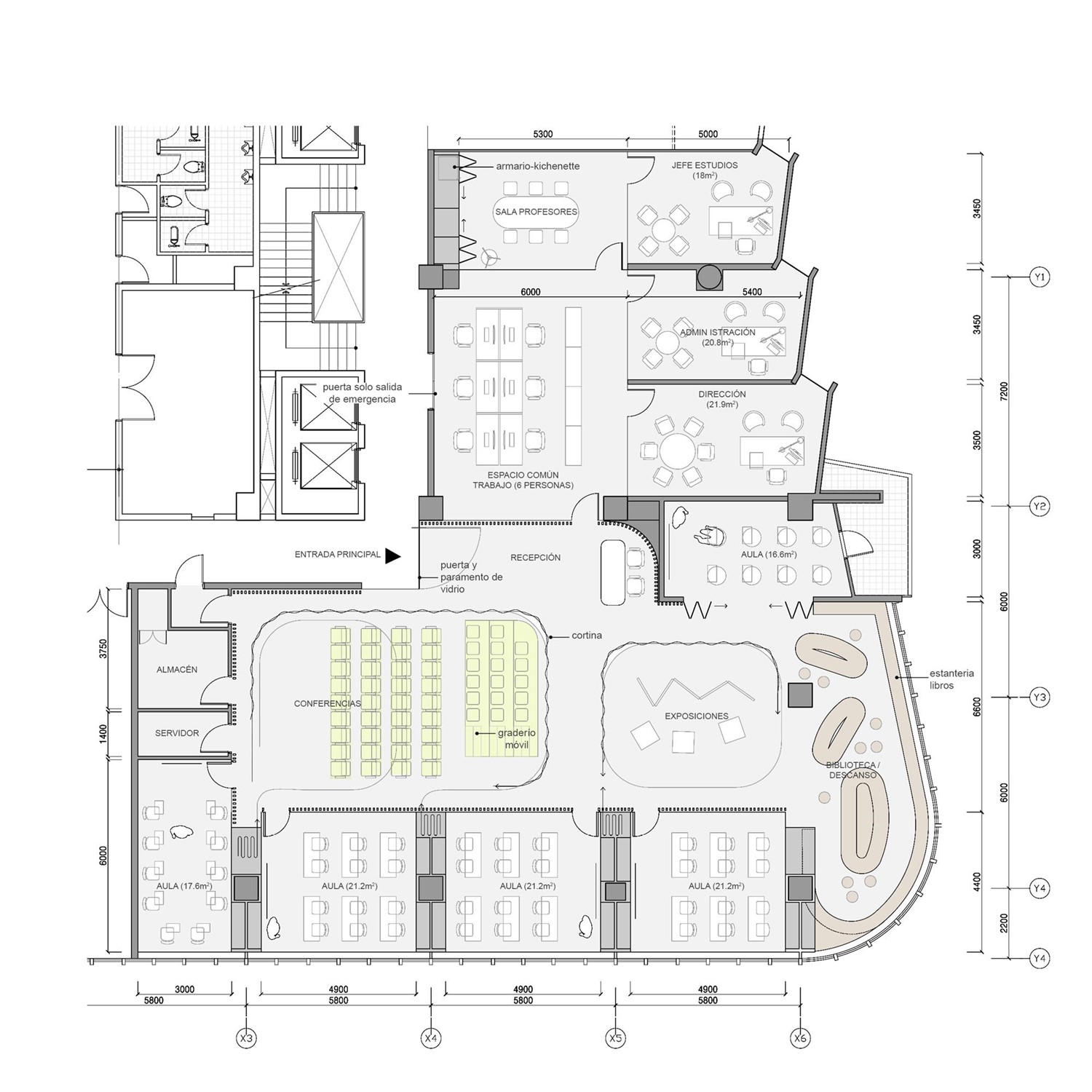
The proposed architectural solution focuses on quality at all levels, from spatial organization to construction detailing, while maximizing space efficiency and natural light. The project is organized around a flexible central space designed to host a variety of activities, supported by a rail system with sliding curtains that allow adaptable spatial configurations. An informal reading area connected to this space features a curved window, integrated shelving, and generous seating. Glass partitions between classrooms ensure the penetration of natural light while maintaining privacy through vertical slats in natural materials. A soft palette of white, beige, and earth tones is applied up to 2.3 m, contrasted above by a dark pastel finish on the exposed slab and services, reinforcing the contemporary character of the space. Overall, the design creates an inviting and adaptable environment for the new Instituto Cervantes in Korea