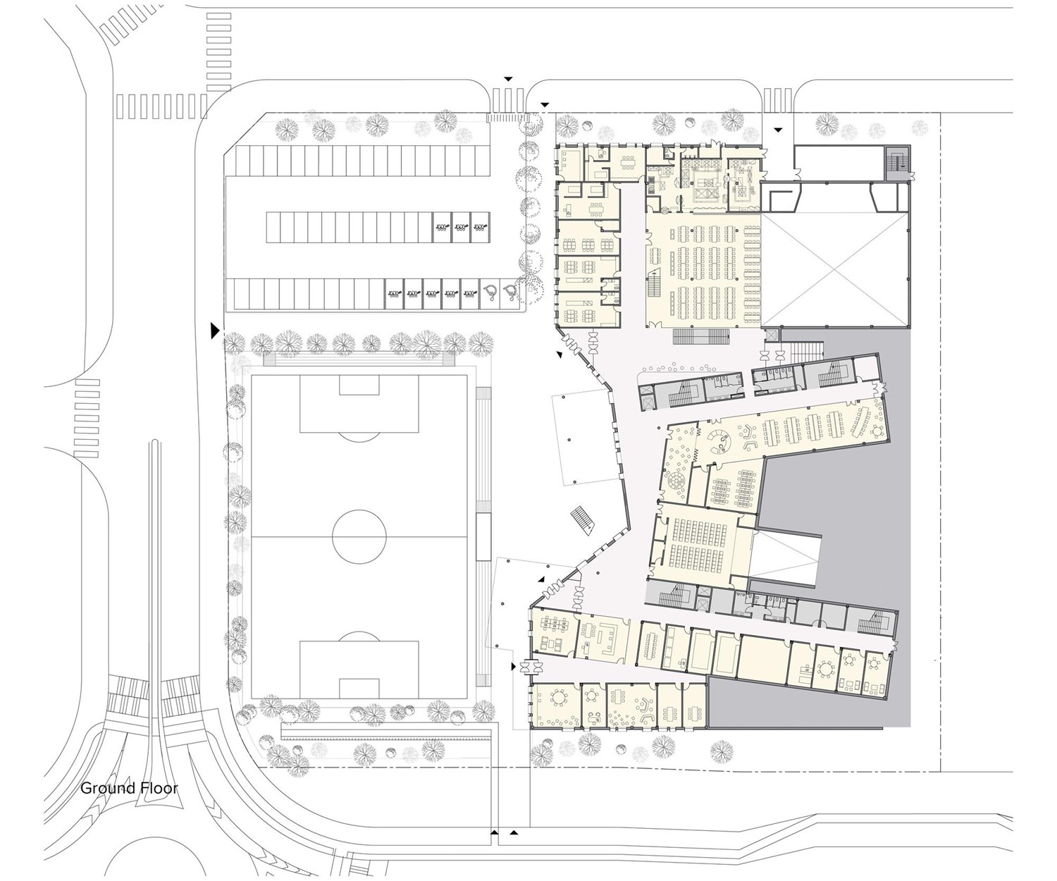
Baegot Elementary School pretends to break through this character and proposes a unique building that truly integrates and takes advantages of the landscape and surroundings. The presence of a park on the east border gives form to the proposal by creating two differentiated open spaces; one inclined and peaceful overlooking the park and other one that absorbs all the active programs such as sports playgrounds and parking. The level change between the two open spaces is filled with school programs creating an integrated building with the landscape.
Connected to the base building above ground level are organized the classrooms in three different volumes. Each volume differentiates from the other in façade treatments and small orientation variations.