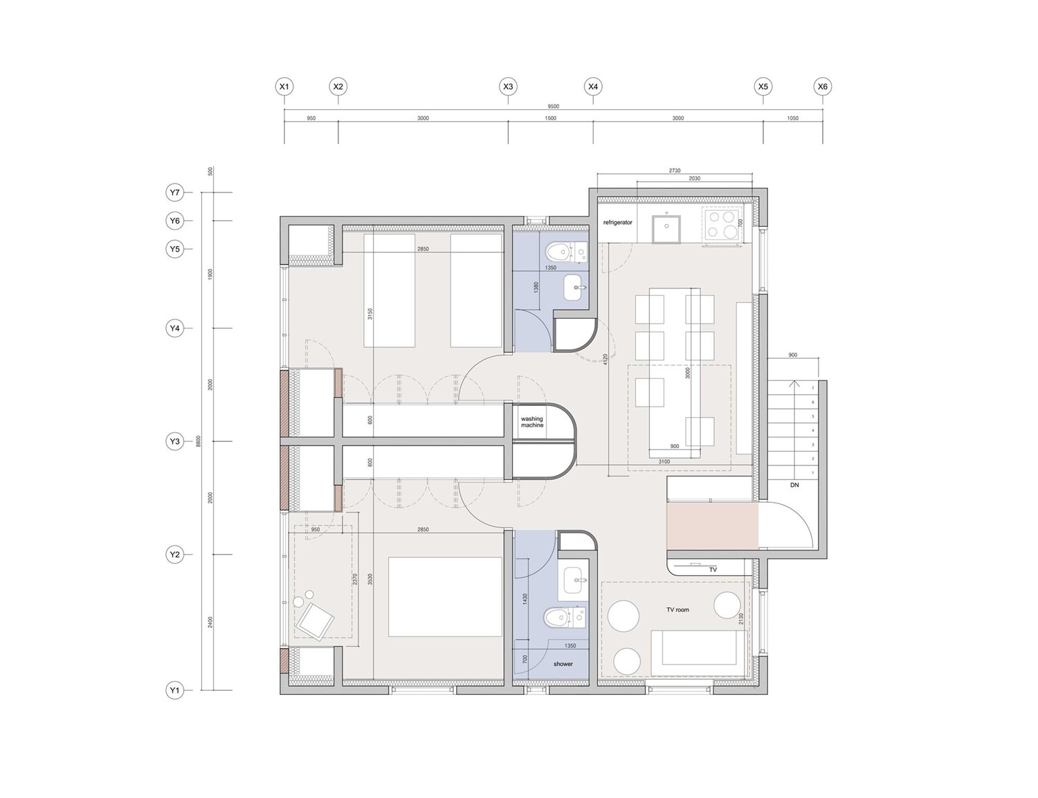
Hyehwa’s house is a three-story building built in the early 90’s in the city center of Seoul. It is common for these type of buildings to have bearing walls structural system which allows for very subtle spatial transformations.
Taking this into consideration, our proposal for renovation redefines a new service area located in the middle of the house acting as a transition zone between the living spaces and the sleeping –more private- spaces. This new element is revealed towards the living space with a green curved wall that wraps the two existing bathrooms, new closets and storage areas without the need to demolish any existing bearing wall.
The vertical MDF curved-section pieces of the service area’s green wall give texture and color to the space in contrasts with the neutral character of the remaining walls.
One of the existing bedrooms is turned into an extension of the living room by removing the door and increasing the width of the opening between both spaces. This way we manage to increase natural light penetration into the living space from the existing window located in the former bedroom space.
It is also proposed to locate a three-meter long table in the living space acting as a central piece of the house used as a dining table in the area next to the kitchen and as a study table in the areas next to the bookshelves.