The Eoullim Sports Center is a hybrid solution that compiles sports facilities, entertainment programs, and a public parking in one same building. The Sports Center is located in the northern limits of Seoul with beautiful natural sceneries close to it. Nevertheless, the neighbor lacks urban public spaces, hence, the intention of the project is to provide high standard sports facilities while creating good quality public spaces for the city.
To achieve this goal, it is proposed a terraced building that simultaneously provides green public spaces on the rooftop as well as an urban plaza covered under the mass of the building. The latest one is in close relationship with the main entrance lobby, having pavement and ceiling materials shifting from the interior to the exterior of the building. This material continuity enhances the perception that the lobby is simply an extension of the outdoor space. The plaza is partially covered by the building itself with an impressive eight-meter cantilever. On the other hand, roof gardens are located at various heights, all connected by stairs and elevators creating a smooth movement from the street all the way to the rooftop.
The new sports facility is a very permeable building due to the presence of multiple entrances distributed along with the levels. This strategy enhances the perception of publicness, the comfort of users as well as safety in the case of an emergency evacuation.
The stepped mass of the building is the reflection of a particular strategy to bring natural light to the three major sports facilities of the building. The design of the section allows natural light to penetrate the spaces of the swimming pool, the gymnasium, and the main basketball court. Also, it provides double-height spaces for these same programs.
The façade of the building is designed in a vertical pattern of anodized aluminum V-shaped modules. These modules double their dimension as they change floor level creating a dynamic visual effect.
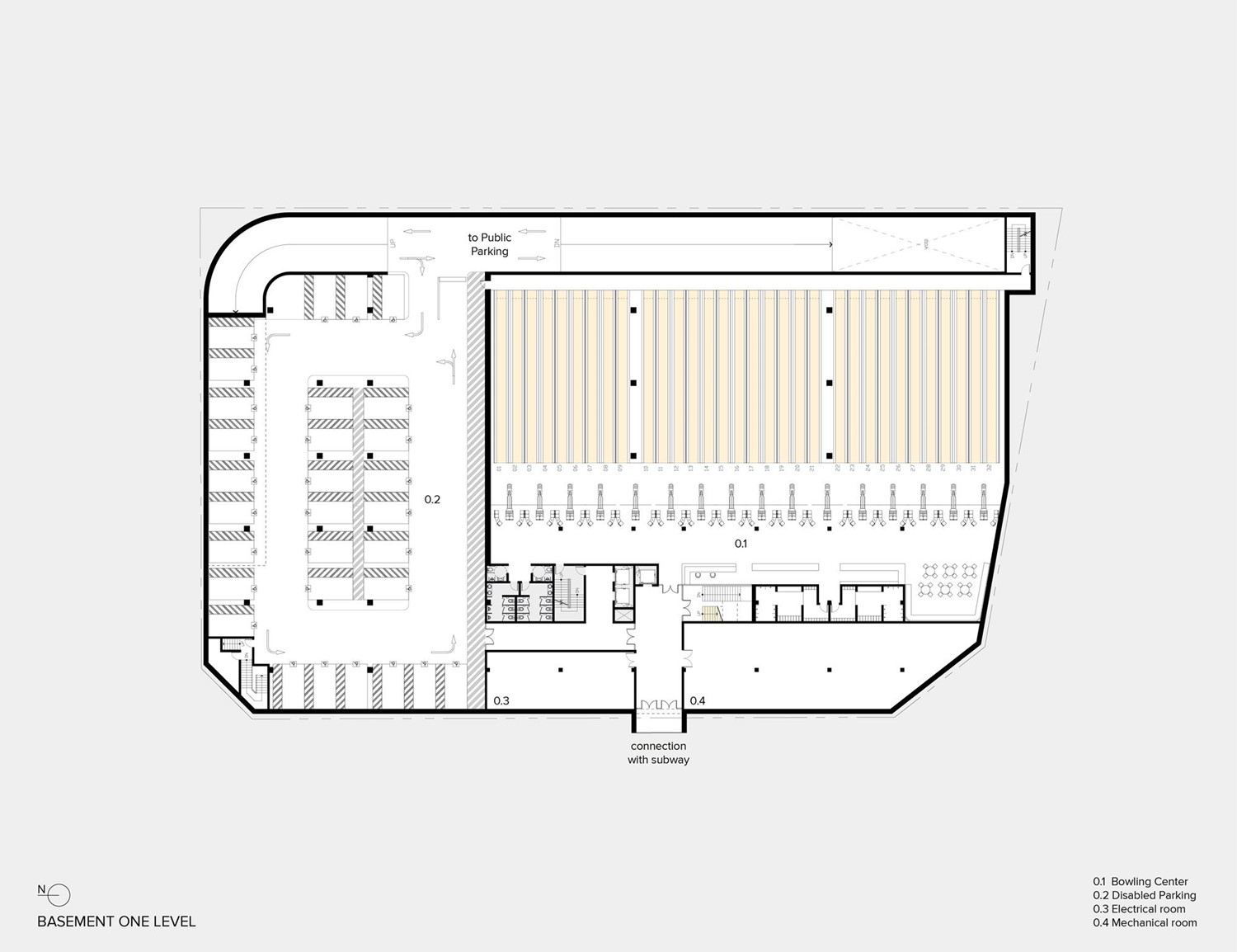
Lastly, the location of the Eoullim Sports Center is well known for having a large population of disabled citizens in comparison to other areas of the city. For this reason, the design proposes an inclusive approach with the highest standards of barrier-free design allowing all kinds of users to practice sports with no limitations